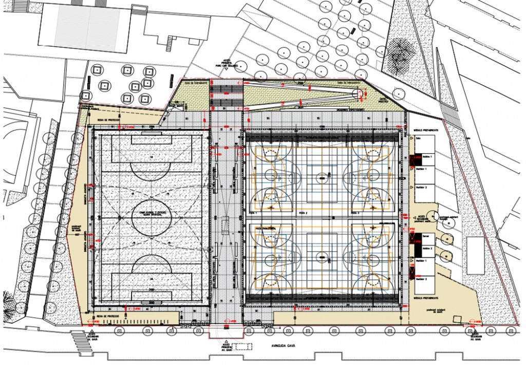
Can Sellarès se prepara para dar un salto importante. El espacio contará próximamente con nuevas instalaciones deportivas, entre ellas dos pistas polideportivas cubiertas y un campo de fútbol 7 con césped artificial, en una actuación que busca modernizar la zona y abrirla todavía más a los barrios de Ponent de Viladecans.

El anuncio se ha hecho público este viernes 24 de abril, y las obras arrancarán en las próximas semanas de la mano del Área Metropolitana de Barcelona (AMB). La inversión prevista asciende a casi 3,5 millones de euros y los trabajos tendrán una duración aproximada de diez meses.
Un nuevo impulso al deporte de barrio
El proyecto sustituirá las actuales instalaciones, donde ahora hay un campo de tierra, por un complejo más moderno y versátil. Las dos nuevas pistas cubiertas podrán acoger disciplinas como baloncesto, balonmano, gimnasia o fútbol sala, entre otros deportes.

Además, el equipamiento contará con:
- Cubierta y gradas abiertas, sin cierres laterales
- Vestuarios
- Espacios de almacén
- Nuevos recorridos internos y accesos renovados
La zona donde se actuará ocupa más de 9.000 metros cuadrados, dentro de una parcela total de más de 31.000 m².
Mejores accesos y más espacio público
Las obras también servirán para mejorar el entorno exterior de Can Sellarès. Se habilitarán nuevos caminos, bancales y conexiones peatonales. El acceso principal seguirá estando en la avenida de Gavà, mientras que también se reforzará la entrada situada en la zona noroeste, conectada mediante escalera y rampa.
Segunda fase: reforma de la masía y nuevas viviendas
El proyecto no termina aquí. En una segunda fase, se actuará sobre la histórica masía de Can Sellarès, dentro del Plan de Mejora Urbana aprobado por la Generalitat.
Ese plan prevé:
- Rehabilitar el edificio histórico
- Conservar la arboleda de acceso
- Renovar equipamientos deportivos y lúdicos
- Crear nuevas viviendas y comercios
- Ganar más zonas verdes para la ciudad
Conectar unos barrios históricamente aislados
Uno de los objetivos principales es integrar mejor los barrios de Ponent con el resto del municipio. Para ello se construirá un nuevo paseo central que conectará directamente Can Sellarès con su entorno. Con esta transformación, Viladecans ganará un nuevo polo deportivo y ciudadano pensado para el uso diario de vecinos, entidades y familias.